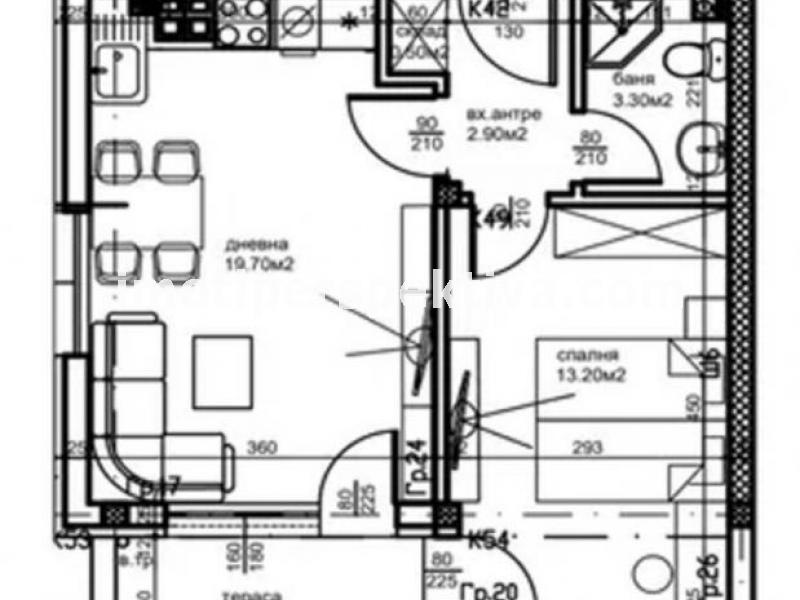
Продава: 2-стаен, Остромила, Кючук Париж, 60кв.м., 2/5ет., 89990€
ПАРКОМЯСТО В ЦЕНАТА! Предлагаме Ви двустаен апартамент на ТИХО и СПОКОЙНО място в новострояща се сграда ПРЕД АКТ 15! Състои се от СВЕТЪЛ и СЛЪНЧЕВ хол с кухненски бокс, САМОСТОЯТЕЛНА спалня, баня с тоалетна, ТЕРАСА и входно антре. Имотът които ви предлагаме да закупите ще бъде на шпакловка и замазка което дава страхотната възможност на новите собственици да го обзаведат по собствен вкус и стил. В близост са разположени детски градини, училища, хранителни магазини, удобен градски транспорт до всяка една точка на града и др.
Запитване и огледи
Полетата, отбелязани със * са задължителни.
Тази форма изпраща email до perspektivaimot@gmail.com с Вашите: IP адрес/анти спам защита/, име, телефон и имейл. Данните се използват, за да се свържем с Вас, относно Вашето запитване.
За повече информация и за начина на управление на Вашите данни посетете: Политика за поверителност и защита.
