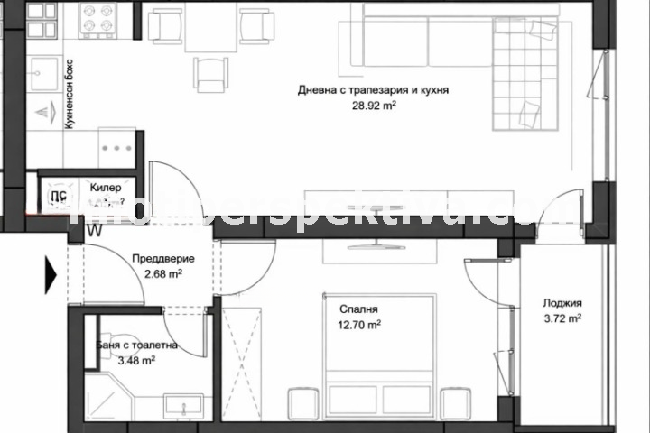
Продава: 2-стаен, I-во РПУ, Кючук Париж, 73кв.м., 7/14ет., 90700€
Предлагаме Ви двустаен апартамент на СРЕДЕН етаж в новострояща се сграда на КОМУНИКАТИВНО място! Състои се от СВЕТЪЛ и СЛЪНЧЕВ хол с кухненски бокс, спалня, баня с тоалетна, ТЕРАСА, килер и входно антре. Имотът които ви предлагаме да закупите ще бъде на шпакловка и замазка което дава страхотната възможност на новите собственици да го обзаведат по собствен вкус и стил. В близост са разположени детски градини, училища, хранителни магазини, удобен градски транспорт до всяка една точка на града и др.
Запитване и огледи
Полетата, отбелязани със * са задължителни.
Тази форма изпраща email до perspektivaimot@gmail.com с Вашите: IP адрес/анти спам защита/, име, телефон и имейл. Данните се използват, за да се свържем с Вас, относно Вашето запитване.
За повече информация и за начина на управление на Вашите данни посетете: Политика за поверителност и защита.
