Продава: Къща, с. Радиново, област Пловдив, 360кв.м., 1/2ет., 450000€
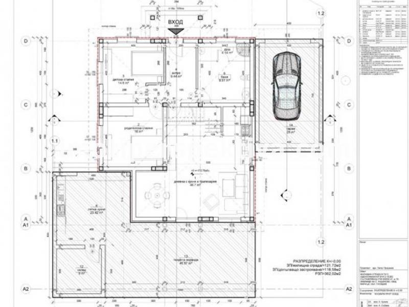
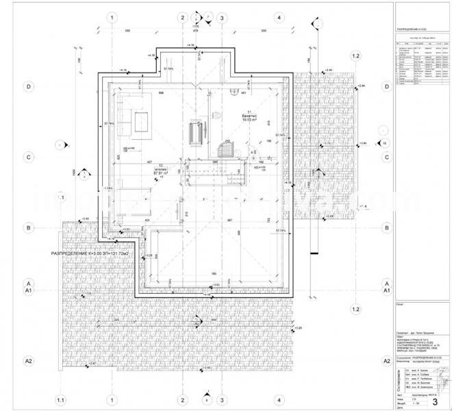
Предлагаме ви възможност да закупите своя нов дом и да бъдете собственици на ДВУЕТАЖНА КЪЩА с ЧЕТИРИ СПАЛНИ, ГОЛЯМА ВЕРАНДА, ЛЯТНА КУХНЯ и ГАРАЖ с топла връзка към къщата с РЗП 360 кв.м. и парцел с площ 521 кв.м.
Къщата разполага с просторен хол с кухненски кът, четири спални и три бани. За удобството допринася и гаража с електрическа врата и директен достъп до къщата. На уютните вечери ще се наслаждавате на покритата веранда към къщата, с обособена лятна кухня и складово помещение. Къщата е разположена в едно от най-предпочитаните места за живеене разположено на 6 км. от гр. Пловдив. Комплексът предлага регулиран достъп, детска площадка с директен достъп до имота, тенис на маса, целогодишна поддръжка. Мястото е спокойно и живописно, същевременно комуникативно. Къщата ще бъде завършена до етап латекс, настилки и бани, което ви дава възможност за гъвкавост и свобода при избора на интериорни решения.
Разпределение:
- първи етаж просторна дневна с площ 46,7 кв. м., с кухненски кът и трапезария, с излаз на покрита веранда с площ 79,39 кв.м. с лятна кухня и складово помещение, спалня с площ 16,00 кв. м., спалня с площ 14,60 кв. м., санитарно помещение 9,51 кв. м., антре, входна веранда и гараж с площ 28,00 кв.м.
- втори етаж спалня със собствен санитарен възел 50,60 кв.м., спалня със собствен санитарен възел с площ 53,74 кв.м.,
Къщата е проектирана с цел да създава лукс, удобство, уют и спокойствие, за което спомагат и висококачествените материали.
Отоплението на цялата сграда е решено по най-ефективния и икономичен начин поставени тръбни разводки за подово отопление и изводи за конвектори, с възможност за монтиране на термопомпа.
Дворът е с изградена вертикална планировка ограда, настилка от бетонови павета, зелени площи, капково напояване и сондаж за вода.
Запитване и огледи
Полетата, отбелязани със * са задължителни.
Тази форма изпраща email до perspektivaimot@gmail.com с Вашите: IP адрес/анти спам защита/, име, телефон и имейл. Данните се използват, за да се свържем с Вас, относно Вашето запитване.
За повече информация и за начина на управление на Вашите данни посетете: Политика за поверителност и защита.
