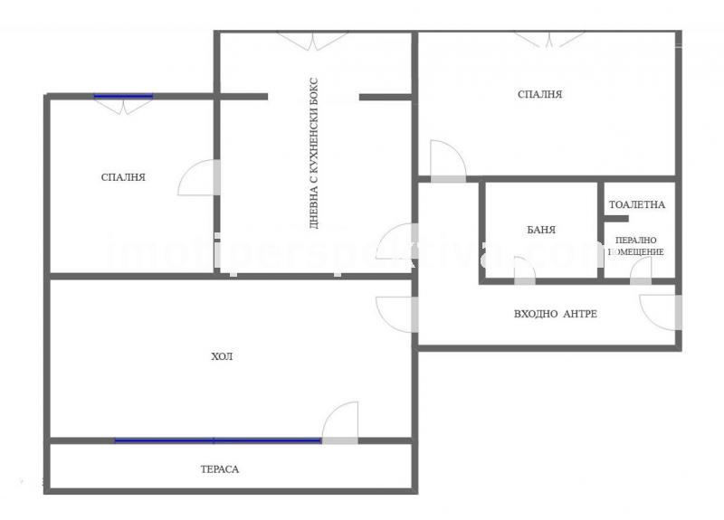
Продава: 3-стаен, Каменица 2, Широк център, 81кв.м., 6/6ет., 140000€
Предлагаме за продажба тристаен апартамент с реално ползваема площ 80,54 кв.м. /без добавен % общи части в площта/, със следното разпределение: Г-образно антре, хол, две спални, една голяма тераса на хола и втора тераса усвоена към площта на кухнята, два санитарни възела - самостоятелна баня, перално помещение с преход към тоалетна. Апартаментът е завършен с ПВЦ дограма, саниран, Предлага се с нличните мебели и електро уреди /черна и бяла техника/. Екстра към имота е монтиран на покрива, над апартамента, слънчев колектор/соларна система за топла вода. Панелна сграда от 1991 година, построена по немски модел - тип сандвичево строителство, с отлична топло и шумо изолация на външните стени. На разположение асансьор. Сградата е много добре поддържана и в момента се санира.
Запитване и огледи
Полетата, отбелязани със * са задължителни.
Тази форма изпраща email до perspektivaimot@gmail.com с Вашите: IP адрес/анти спам защита/, име, телефон и имейл. Данните се използват, за да се свържем с Вас, относно Вашето запитване.
За повече информация и за начина на управление на Вашите данни посетете: Политика за поверителност и защита.
