Продава: 3-стаен, Тракия, 87кв.м., 3/8ет., 134990€
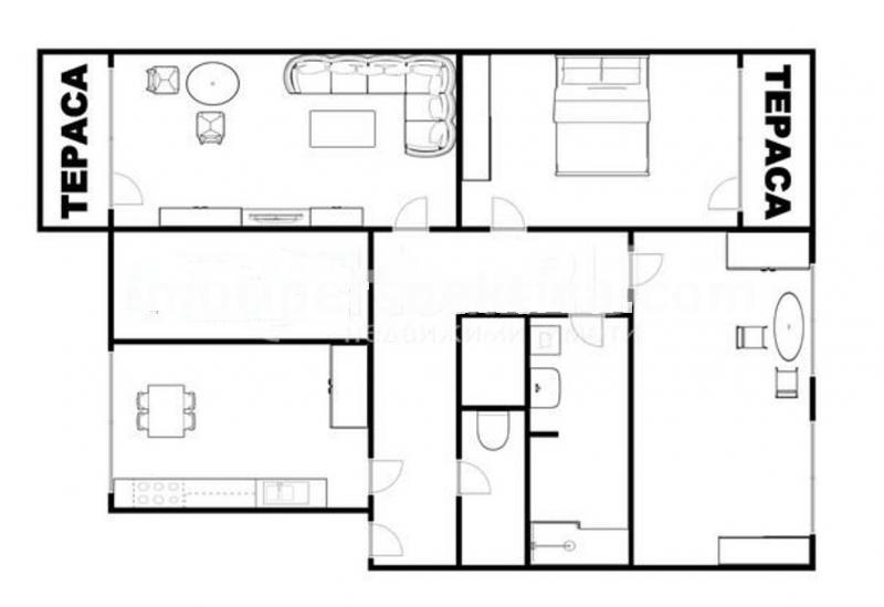
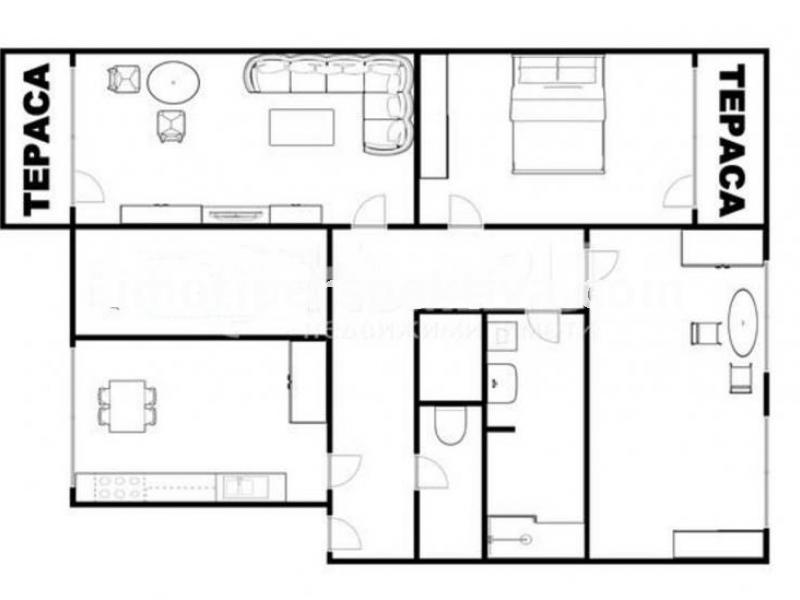
Представяме на вашето внимание най-новото ни предложение в един от любимите квартали в град Пловдив, а именно кв. Тракия! Тристаен апартамент с четири отделни помещения, в който спокойно може да позиционирате три спални и да стане на четиристаен. Жилището е със сменена дограма, изключително запазено, напълно обзаведено и готово за живеене, разполага с качествена масивна мебел и придава един много интересен и необикновен стил! Блокът е с много добре поддържани общи части, асансьор, а външната изолация на апартамента допринася за още по-голям комфорт в имота. Намиращ се в тих и спокоен район, а същевременно локацията на имота осигурява всички необходими удобства в близост като училища, магазини, аптеки, спирки за градски транспорт и ресторанти. Лесното и свободно паркиране, зелените площи и междублоковото пространство са неща, които са страхотен бонус за живущите в този микрорайон! Апартаментът разполага и с изба, а за ваше улеснение сме направили схема с разпределението на помещенията.
Запитване и огледи
Полетата, отбелязани със * са задължителни.
Тази форма изпраща email до perspektivaimot@gmail.com с Вашите: IP адрес/анти спам защита/, име, телефон и имейл. Данните се използват, за да се свържем с Вас, относно Вашето запитване.
За повече информация и за начина на управление на Вашите данни посетете: Политика за поверителност и защита.
